网站首页
关于我们
新闻资讯
产品展示
心博(中国)官方
桥梁模具
箱涵管廊
路沿石模具
路沿石心博(中国)官方
路沿石塑料模具
U型槽模具
U形槽心博(中国)官方
U形槽塑料模具
隔离墩模具
隔离墩心博(中国)官方
化粪池模具
化粪池心博(中国)官方
检查井模具
检查井心博(中国)官方
井盖模具
井盖心博(中国)官方
井盖塑料模具
电力盖板模具
电力盖板心博(中国)官方
电力盖板塑料模具
高铁、铁路工程模具
高铁、铁路工程心博(中国)官方
高铁、铁路工程塑料模具
护坡模具
护坡心博(中国)官方
护坡塑料模具
花墙砖模具
花墙砖心博(中国)官方
花墙砖塑料模具
塑料模具
防撞墙模具
挂篮模板
风电基础模板
模具世界
模具加工
模具制品
模具公司
模具工业
心博(中国)官方
模具加工
发布时间:2020-03-19 06:16:25
CONTACT
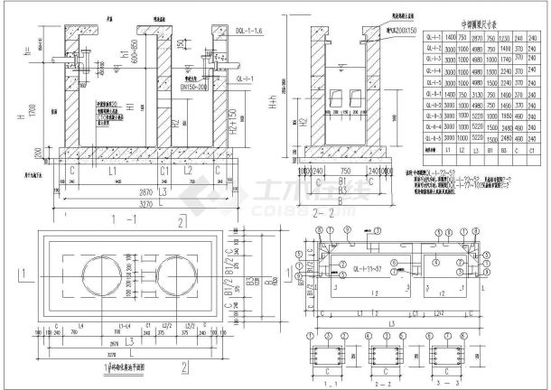
化粪池模具厂:某小区的化粪池施工结构图
化粪池结构图1
化粪池结构图2
化粪池结构图3
化粪池结构图4
上一篇:
隔离墩模具厂:隔离墩的安装工具和方法介绍
下一篇:
[化粪池模具厂]家用化粪池的标准尺寸
热门新闻
| NEWS
翰轩钢模板厂高层召开了目···
风电基础模板的拼装及每平···
PC预制墙板模具的生产厂···
预制阳台板模具在建筑中的···
星际官方网站_星际XINGJI(中国)
|
乐鱼(中国)leyu·官方网站
|
星空体育·(中国)官方网站
|
万搏线上平台
|
华体会正规平台
|
万象城
|
澳洲10网页版
|
必一平台
|
JY平台
|